第2回「厚い壁の窓デザイン」〜Q1.0住宅の窓設計ノウハウ
現場に精通した高断熱・高気密住宅の第一人者・鎌田紀彦氏のこれまでの活動の中で設計した住宅、氏と共に新住協を支えている会員の設計などを紹介しながら、そこから生まれた新しい技術や計画手法、 高性能住宅ならではのデザインを紹介します。
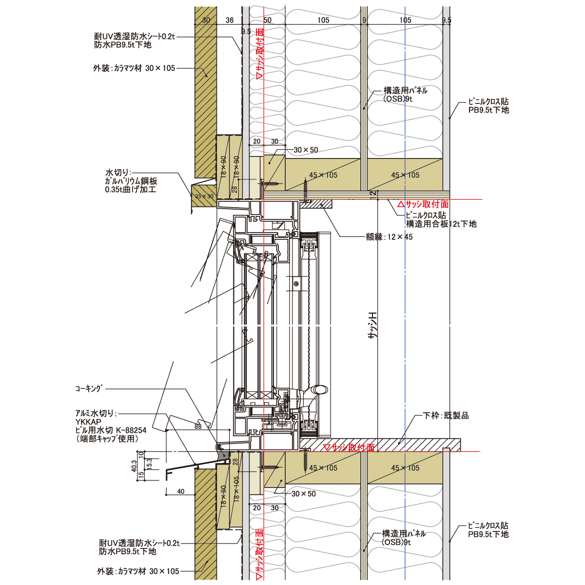
木材の外壁なら肉付けにできる
外壁を木材の羽目板などで納める場合は、サッシの周囲に木枠をまわして内付けにすることが容易です。図-4は室蘭に建てた実験住宅の窓まわりの図面です。半外付けサッシを少しでも内側に引っ込めようとだいぶ苦労しましたが、普通の付け方より30mmくらい引っ込んだだけですが、サッシのつばの外側が木材で覆われ、熱損失が少なくなっていると考えられます。このつばがもう少し長いともっと内側に引っ込めることができると思います。


サッシをもっと思い切って内側に付けるには、この図面からもわかるとおり、サッシの外の木枠を壁の中まで入り込むような設計をすればいいことになります。例えば300mm級の外壁ならば、サッシを200mmぐらい引っ込めることは簡単にできます。こうして窓が引っ込めば、建物の外観は彫りの深い表情となります。設計事務所ではこうしたデザインを採用しそうですが、ちょっと問題があります。窓を引っ込めると、壁が上部と左右で庇の役目をして、日射が窓に当たる量が減ってしまうのです。この影響は200mm引っ込めたとして、中型窓で20%減、大型のテラス窓で10%減ぐらいです。これもQPEXで簡単にチェックできます。影響があるのは南面だけで、東西北面ではほとんど影響ありません。南の窓をどうしても引っ込めたデザインにしたければ、その分多少窓を大きくするなどの対策を取ればいいでしょう。

結論として、窓は50〜100mm程度引っ込んだ内付け納まりとし、サッシ枠の外側が断熱性のある材料で覆われるように納めるのが良いのではと考えています。
Related articles関連記事
海が近いヘルシンキ。今年初めての週末セーリングを楽しむ
床材を選ぶ。 – リプランのオフィスリノベーション



























